5. 달기틀

1) 재료

가. 달기틀의 재료는 표 6의 규정에 적합하거나 이와 동등 이상의 기계적 성질을 가진 것을 사용해야 한다.

<표 6> 달기틀의 재료

구성부분

재         질

강관

KS D 3566(일반구조용 탄소강관)의 SGT275 또는 KS D 3568(일반구조용 각형강관)의 SRT275

강판

KS D 3501(열간압연 연강판 및 강대)의 SPHC

형강

KS D 3503(일반구조용 압연강재)의 SS235

나. 달기틀의 각 부분은 현저한 손상, 변형 또는 부식이 없어야 한다.

2) 구조

달기틀은 달대, 보 및 난간기둥이 용접 등에 의하여 일체화된 구조 이어야 하며 다음 각 목과 같이 한다.

가. 보에서 작업발판을 설치할 수 있는 부분의 길이는 400㎜ 이상 600㎜ 이하일 것

나. 난간기둥의 높이는 작업바닥면의 윗면에서 난간 기둥의 끝단까지로 하며 1,000㎜ 이상일 것

다. 난간 기둥에는 보의 윗면에서 중심간격 450㎜ 이내마다 난간 체결부가 있어야 하며 최상단의 난간 체결부는 보의 윗면에서 900㎜ 이상의 높이에 있을 것

3) 성능

달기틀의 시험성능기준은 표 7의 규정에 따른다.

<표 7> 달기틀의 시험성능기준

항 목

시험성능기준

처짐량

30㎜ 이하

휨강도

10,000N 이상

수평이동량

100㎜ 이하

4) 시험

가. 달기틀의 시험방법은 다음 각 세목과 같이 한다.

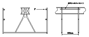
1) 달기틀의 처짐 및 휨시험은 그림 6과 같이 2개의 달기틀을 600㎜의 간격으로 H형강에 부착시켜 2개의 달기틀 유효부의 중앙에 걸친 가력보의 중앙에 4,000N의 수직하중을 가하여 달기틀 유효부 중앙의 처짐량을 구하고 하중을 계속 가하여 하중의 최대값을 측정할 것(재하 속도는 25∼30㎜/min 이하이어야 한다)

[그림 6] 달기틀의 처짐 및 휨 시험


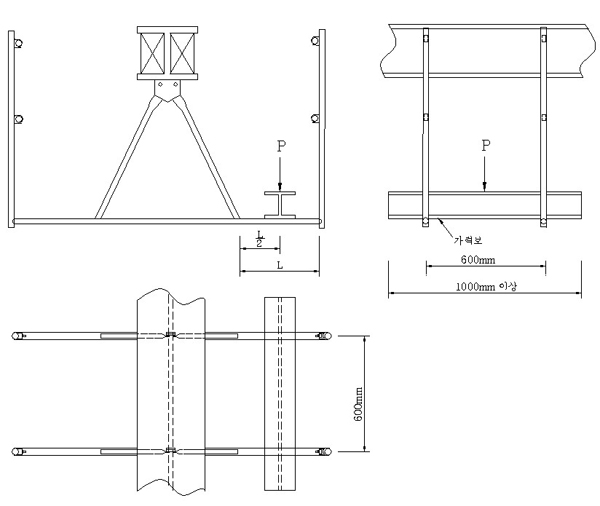
2) 난간기둥의 수평이동량 시험은 그림 7과 같이 2개의 달기틀을 600㎜의 간격으로 H형강 지그에 부착시켜 각각의 난간기둥의 난간체결부에 한 개의 강관을 부착하고 그 중앙에 보와 평행으로 외측방향에 800N의 수평하중을 가하여 각각의 난간기둥의 수평이동량을 측정할 것(재하 속도는 25∼30㎜/min 이하이어야 한다)



[그림 7] 난간기둥의 수평이동량 시험

나. 이 시험에 사용하는 가력보, 단관비계용 강관 및 H형강 지그는  다음 각 세목의 규정에 적합해야 한다.

1) 가력보

가) KS D 3503(일반구조용 압연강재)의 SS400에 적합한 강재일 것

나) 그림 8에 표시하는 치수일 것

단위 : ㎜

[그림 8] 가력보 구조

 

2) 단관비계용 강관

KS D 3566(일반구조용 탄소강관)의 STK500에 적합한 것일 것

3) H형강 지그

KS D 3503(일반구조용 압연강재)의 SS400에 적합한 강재일 것

단위 : ㎜

[그림 9] H형강 지그의 구조